Huron Hospice asks for $1 Million Loan from County

PRESS RELEASE:

At the Huron County Council meeting on February 6, 2019, Huron Hospice asked the County for a $1 Million loan. The loan will be used to support capital costs and the upcoming phase 2 renovations to the hospice, which opened in May last year. Between May 2018 and January 2019, Huron Hospice Residence provided end-of-life care for 41 people and supported their families, at no cost, in the 4-bed hospice located between Goderich and Clinton.

 “We are open and functioning and providing quality hospice care close to home right now, but we can do so much more after our phase 2 renovations are complete” says Jay McFarlan, Co-Chair of the Board of Directors at Huron Hospice. “We were under a rushed timeline to open, and we decided to take this two-phase approach to renovations to ensure we could start providing care within that timeline.”

 The South West Local Health Integration Network (SWLHIN) announced in February 2017 that government funding would be available to support nursing costs of four hospice beds in Central Huron, and 6 beds in Stratford. That announcement also stipulated that hiring and training of staff must start no later than March 2018, giving 13 months to raise funds, purchase the property, renovate the house and open doors.

 To date, the hospice has raised $1 million of its $2.5 million goal. The capital campaign costs include purchase of the property, renovations, and the first year of operations.

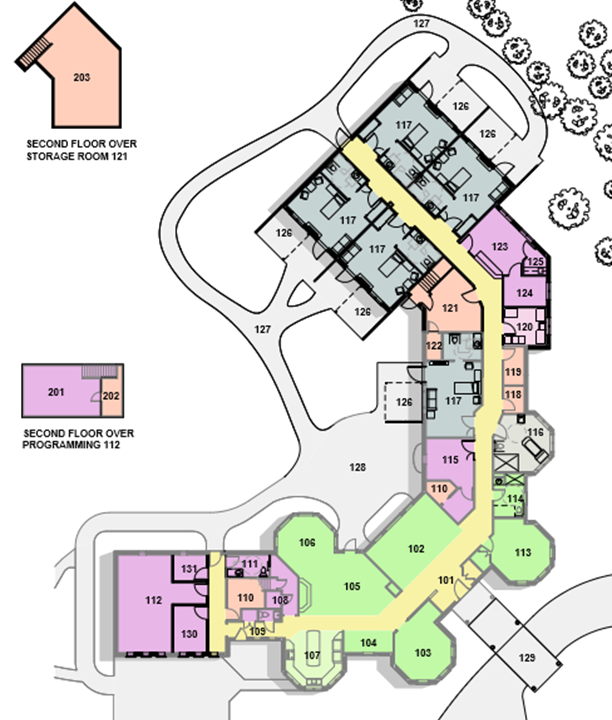
Architectural plans for Phase 2 renovations have already been completed, and the necessary connections for plumbing, electrical, fire suppression, and networking were prepared during Phase 1 renovations.

 The house was already well-suited to becoming a hospice with wide hallways and wide doors, and large windows that let in lots of natural light. The house is situated on 12-acres of rolling land and natural environment, centrally located in rural Huron County. Phase 1 renovations required a fire sprinkler system, water storage tank, and a backup generator to comply with regulations for operating a 4-bed hospice. The phase 2 plans include a 4-bedroom addition to the house which would allow the existing bedrooms to be repurposed for other things such as a children’s play room, a private spiritual room, a proper nurses’ station, and transform the attached garage into a meeting space for support groups.

 Huron Hospice has been approved for a grant from the Ministry of Health and Long-Term Care for many of these capital expenses, up to $680,000. But the hospice must have matching funds before the grant money is made accessible. A loan from the County would help the hospice access this grant and contribute significantly to the capital campaign.

 “We are building a community resource that will be around for generations,” says Daryl Ball, Huron Hospice board member and capital campaign lead. “Huron Hospice aligns very well with the County’s Economic Development Plan to make this region a desirable place to live.”

 In the most recent Huron County Economic Development Plan, there were several key issues identified in the Strength/Weakness/Opportunity/Threat (SWOT) analysis which align very well with operation of Huron Hospice. Huron Hospice is a “team of local stakeholders already working on key issues such as health care” and is offering “niche health care services including services for the seniors’ population,” which were identified as Strengths and Opportunities, respectively. The County identified a “lack of effort to develop new sector opportunities” and a “perceived lack of access to growth capital” as Weaknesses in the SWOT analysis. Providing one-time capital funds to Huron Hospice would help address those weaknesses.

 The hospice employs 15 highly trained nurses (mixture of full-time, part-time, casual) some of whom have moved to this region specifically so they could use their skills at the hospice. There are also two physicians who frequent the hospice, who have advanced certification and expertise in hospice palliative care, and we are fortunate to have that dedicated resource available in Huron County. If these highly qualified people can’t use their skills in Huron County, they may seek opportunity elsewhere, and this was a Threat identified in the SWOT analysis.

 Also, from the Economic Development Plan, “The county needs to position itself as a model for high quality rural health care services in Ontario” and support senior services, attract key professionals, and “promote quality of health care services as part of the people attraction efforts.”

 Huron Hospice aligns very well with the County Economic Development Plan, and the hospice would not be here without important partnerships we have developed along the way. The County and municipalities have provided in-kind help when they can. Many businesses have modified their work schedules and project timelines to make Huron Hospice Residence a reality. The hospice is also grateful for the network of volunteers who have contributed many hours towards this community resource. We are asking the County for a loan to invest in a community asset that will assist many families and help make Huron County a great place to live.

Council has requested a report from County staff to investigate the viability of our request.

For media inquiries, contact:
Jay McFarlan
jay@huronhospice.ca


Below is the slideshow that was presented to County Council:

Previous
Previous

UPDATE: Huron County does not approve $1M loan request, citing looming costs of bridges and roads

Next
Next

Huron Residential Hospice Welcomes First Family